Объект в жилом комплексе:
| Фото | Комплекс |
|---|---|
|
|
Жилой комплекс «Райки» |
Улица:
Пушкина улица Адрес строительный: ул. Пушкина стр 2
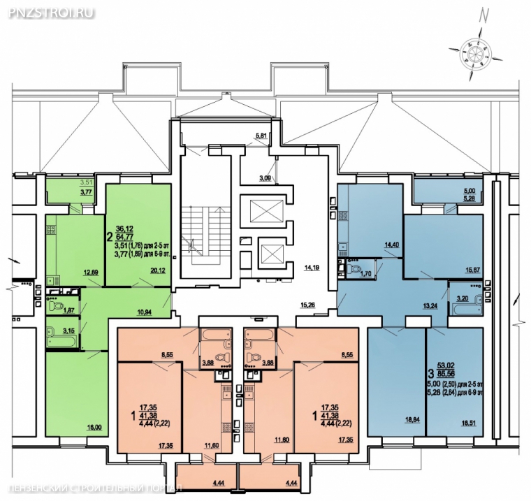
Общая площадь квартир10727,72 кв.м.
- 1-комнатных 41,38 кв.м. - 82
- 2-комнатных от 63,76. до 66,94 кв.м. - 71
- 3-комнатных от 85,56 до 86,8 кв.м. - 26
В продаже
- 1-комнатные квартиры
- 2-комнатные квартиры
- 3 комнатные квартиры
Стоимость квартир от застройщика: неизвестна
Стоимость квартир от застройщика:
неизвестна Застройщик
Все объекты застройщика на pnzstroi.ru
Пожалуйста, сообщите Застройщику, что Вы нашли эту недвижимость на Pnzstroi.ruХарактеристики
Этап строительства:
на стадии строительства
Дата начала строительства:
2012
Срок сдачи:
2016 Прикрепленные файлы:
Описание
Количество квартир:
358
Класс:
комфорт
Класс:
комфорт +
Технология строительства:
кирпич Придомовая территория
Наличие парковки:
да
Наличие детской площадки:
да Инфраструктура
Общая:
Социальная инфраструктура:
Цена по объявлениям
средняя цена за кв.м.:
0 руб.
всего объявлений:
0 Яндекс-РСЯ:
| Статистика: | просмотров сегодня: 7 |
| просмотров всего: 32412 | |
Источники информации
Описание дома: oao-penzastroy.ru
Фотография: oao-penzastroy.ru
Планировка квартир: oao-penzastroy.ru
Другие объекты
Предложения по строительству и ремонту:
Комментарии и отзывы












Сообщить о неточности на странице
Прислать данные для объекта 







Добавить жилую недвижимость на Pnzstroi.ru
Перейти к списку всех застройщиков в Пензе

