Район:
Арбеково (дальнее)
Улица:
Бородина улица
Строение №:
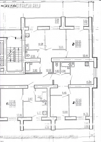
29 Количество этажей: 18, с подвалом и техническим этажом.
Дом построен из кирпича и оснащен двумя лифтами грузоподъемностью 630 и 400 кг. Для утепления наружных стен применена система фасадного утепления по системе «Текс-Колор В1» .
Общее количество квартир - 105 шт:
- Однокомнатных - 75 шт.;
- Двухкомнатных – 30 шт.;
Квартира подлежит передаче со следующей отделкой и установкой следующего оборудования:
- выполнение общестроительных работ по дому, чистовая отделка площадей общего пользования;
- благоустройство территории в соответствии с проектом;
- выравнивающий слой по плитам перекрытия под чистовую стяжку;
- выполнение штукатурных работ и затирка рустов;
- установка пластиковых оконных блоков, подоконников;
- установка строительной щитовой входной двери;
- водопроводные стояки ГВС и ХВС с установкой запорной арматуры, приборов учета , без разводки по квартире;
- канализационные ПВХ стояки с заглушками без разводки по квартире и установки сантехприборов;
- система отопления с установкой отопительных приборов согласно проекту;
- ограждающие конструкции санузла;
- приобретение и установка электрического счетчика с вводом электрической сети в квартиру с разводкой по квартире;
- вентиляция естественная;
- для обеспечения учета общего расхода, в целом по дому, воды и электроэнергии в систему коммуникаций дома устанавливаются общие домовые счетчики.
Дом оборудован индивидуальным тепловым пунктом.
Для временного хранения автомобилей предусмотрена автостоянка около дома.
Внимание! Все квартиры проданы от застройщика
Застройщик
Все объекты застройщика на pnzstroi.ru
Пожалуйста, сообщите Застройщику, что Вы нашли эту недвижимость на Pnzstroi.ruХарактеристики
Этап строительства:
дом сдан
Сдан:
2015 Прикрепленные файлы:
Описание
Количество квартир:
105
Этажность:
18
Класс:
эконом
Технология строительства:
кирпич Отделка квартир
Высота потолков:
2,5 Придомовая территория
Наличие парковки:
да
Наличие детской площадки:
да Инфраструктура
Цена по объявлениям
средняя цена за кв.м.:
0 руб.
всего объявлений:
0 Яндекс-РСЯ:
| Статистика: | просмотров сегодня: 9 |
| просмотров всего: 26238 | |
Другие объекты
Предложения по строительству и ремонту:
Комментарии и отзывы
»
- Добавить комментарий
- 26238 просмотров









Сообщить о неточности на странице
Прислать данные для объекта 







Добавить жилую недвижимость на Pnzstroi.ru
Перейти к списку всех застройщиков в Пензе

