Галерея коммерческих помещений на первых этажах многоквартирных домов стала неотъемлемой частью современных жилых комплексов и занимает большое место в повседневной жизни горожанина. Компания Жилстрой Девелопмент еще на этапе проектирования уделяет внимание как интересам будущих жильцов, так и перспективам развития бизнеса. Проекты застройщика, где предусмотрена коммерческая недвижимость, расположены в районах с развитой инфраструктурой.
Zenlife
Дом возводится в историческом центре города — между улицами Калинина и Богданова. Собственники коммерческих помещений могут рассчитывать на постоянный покупательский трафик и отличную транспортную доступность.
Бизнес-недвижимость находится на первой линии, общий архитектурный облик дома привлекает внимание, так что услугами и сервисами будут пользоваться не только резиденты Zenlife, но и жители близлежащих домов.
Оптимальный метраж коммерческих помещений (от 62 до 322 кв. м) и универсальные планировочные решения позволяют использовать их и под офис, и под продуктовый магазин, фитнес-студию или салон красоты/
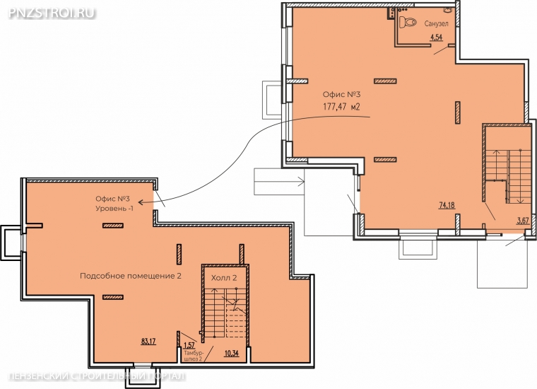
Сити-Квартал
Конкурентные преимущества Сити-Квартал, расположенного на ул. Измайлова, создают постоянный автомобильный трафик и покупатели из числа жильцов. Дома подключены к центральным коммуникациям — вода, свет, тепло, канализация, не придется думать о бытовых неурядицах.
Коммерческие помещения расположены на первой линии у оживленной дороги, имеют удобные подъездные пути, просторную парковку.
В продаже осталось всего 1 помещение – офис номер 10. И в сентябре сдача дом, а значит – вы сможете купить офис и начать готовиться к запуску вашего бизнеса практически сразу.
Алфавит
Весь первый этаж ЖК Алфавит спроектирован под бизнес различного назначения.
Жилой комплекс находится в хорошо обжитом районе с активным трафиком, имеет удобный доступ и хорошо просматривается со стороны движения транзитного потока.
100-процентная заселенность района обеспечивает большое число постоянных клиентов. Кроме того, рядом расположен парк «Комсомольский», и правильно выбранный вид деятельности гарантирует приток новых покупателей и посетителей.
Дом уже сдан, ключи – в день сделки!
Новобережье
Перспективы развития бизнеса в новом микрорайоне Новобережье на ГПЗ практически безграничны.
В Первом доме расположились коммерческие помещения площадью от 35 до 94 кв. м. Свободные планировки подходят под разные виды деятельности.
Отдельные входы спроектированы на уровне асфальта — никаких лишних лестниц и крутых пандусов. Это по достоинству оценят и родители с колясками, и пожилые люди. Разгружать товар и монтировать оборудование тоже будет удобно.
Покупателям коммерческой недвижимости обеспечивается комплексное сопровождение, оказывается помощь в приобретении помещения через программы банков-партнеров и подбирается оптимальный способ покупки.
Узнать подробнее о них вы можете в офисах продаж:
Центральный офис на ул. Пушкина, 43: пн.-пт. — с 9.00 до 19.00, сб. — с 10.00 до 16.00, вс. — с 10.00 до 14.00.
Офис продаж в ТЦ «Лента»: г. Пенза, ул. Антонова, 18В, пн.-пт. — с 11.00 до 19.00, сб.-вс.— с 10.00 до 16.00.
Записаться на консультацию можно по телефону по телефону 21-22-23.
Компания-застройщик: Общество с ограниченной ответственностью «Специализированный застройщик «Новое Решение». С проектной декларацией можно ознакомиться в сети Интернет на сайте наш.дом.рф.







Сообщить о неточности на странице








